- Have & udendørs miljø
- Værktøj & redskaber
- Badeværelsesindretning
- Døre og porte
- Drivhuse
- Sport & fritid
- Lagerrydning
- Træningsudstyr
- Skure & hytter i sæt
- Hjem & indretning
- Vinduer
- Hus & byg
- Bil & garage
- Tilbud
- Nyheder
- Outlet
- Alle produkter
- Varemærker
Anneks Katja F .V2 - 25 m²
Produktet er udgået
Er du ved at løbe tør for plads og ønsker du at udvide på praktisk og smidig vis? Måske et gæstehus på grunden, et udhus, redskabsskur eller eget hus til teenageren? Et anneks (attefalls-hus) kan også fungere godt som for eksempel et kolonihavehus eller et sommerhus. Dette er muligt takket være svenske bestemmelser om attefalls-huse, der tillader, at et frit antal attefalls-huse på højst 25 kvm kan bygges som et supplement til et en- eller to-bolig hus. Bare husk, at højden på tagryggen ikke må overstige 4 meter. I modsætning til friggebod-huse kan attefalls-huse ikke kun bruges som tilbygninger, men også indrettes og bruges som selvstændige boliger. Spørg den svenske boligstyrelse om yderligere regler for attefalls-huse.
Dette sæt indeholder en terrasse.
Præfabrikeret:
Dette anneks (attefalls-hus) leveres komplet som et byggesæt og samles let i henhold til den medfølgende tegning. Husets design og struktur gør det både nemt at samle og stabilt. Alle materialer leveres ubehandlet, og det anbefales at behandle med grundolie, primer til udendørs brug eller topcoat på et tidligt stadium. Alt der er nødvendigt for montering er inkluderet, dvs. søm, skruer osv.
Loft og gulv:
Loftet og gulvet består af 18 mm rå træbrædder, dette er inkluderet i byggesættet. Behandlede brædder til fundamentet er også inkluderet. Selve fundamentet skal man lave selv, materialer til dette er ikke inkluderet. Hvordan fundamentet laves afhænger af jordforholdene, husets udseende og hvad man selv foretrækker. Enten kan fundamentet støbes, eller også kan et sokkel-fundament på for eksempel havefliser eller lette klinker bruges.
Tagdækning:
Tagdækning er ikke inkluderet, men kan tilvælges.
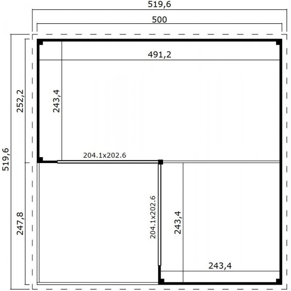
Mål og specifikationer:
- Materiale: Nordisk gran
- Vægtykkelse: 44 mm
- Behandling: Ubehandlet
- Dimensioner af brædder: 500 x 500 cm
- Vægdimensioner: 500 x 500 cm
- Dimensioner af fundament-brædder: 45x70 mm
- Gulvareal: 24.13 m²
- Volumen: 58.45 m³
- Væghøjde: 233.7 cm
- Højde af tagryg: 250.8 cm
- Tagudhæng: 10 cm
- Dimensioner af tagbrædder: 18x90 mm
- Tagareal: 26,26 m²
- Taghældning: 1.3 °
- Dimensioner af gulvbrædder: 18x90 mm
- Døre:
- Dørtype: Skydedør
- Antal: 2 stk.
- Dørdimensioner: 2041 x 2026 mm
Sådan håndterer vi kundeanmeldelser
Vi sikrer, at vores produktanmeldelser kommer fra ægte kunder gennem følgende proces:
Efter hver leveret ordre sender vi et unikt link til kunden via e-mail. Gennem dette link kan kunden kun anmelde de specifikke produkter, der indgik i den pågældende ordre – ingen andre produkter kan anmeldes via det samme link. På anmeldelsessiden har kunden også mulighed for at bedømme os som forhandler. Denne metode garanterer, at alle anmeldelser kommer fra kunder, der faktisk har købt og modtaget de produkter, de anmelder.
Offentliggørelse af anmeldelserVi offentliggør alle anmeldelser, der overholder vores retningslinjer, uanset vurdering. Det betyder, at både positive og negative anmeldelser vises, så længe de ikke indeholder upassende sprog, personangreb eller mangler relevans.
Anmeldelser, der udelukkende vedrører leveringsproblemer (f.eks. forsinkelser), offentliggøres ikke på produktsiden, da de ikke vurderer selve produktet. Sådanne kommentarer kan dog gives i vurderingen af os som forhandler.
Beregning af gennemsnitlig vurderingDen gennemsnitlige vurdering for et produkt vises som et gennemsnit af alle offentliggjorte anmeldelser for netop det produkt.
Læs mereSuper flot produkt og hurtig og god service
Den rigtige vare - hurtig levering
De holder hvad de lover💪🏻
Hurtig levering, webshop ligetil. Ok fra mig!
Dejligt produkt 👍
Varer til tiden prima kvalitet
God service og en fantastisk spa
Både bestilling og levering var meget tilfredsstillende
- Meget for pengene & stort sortiment
- Udelukkende kvalitetsprodukter
- Betal 14 dage efter levering
- Hurtig levering!
- Flink kundeservice!
- Vores kvalificerede og imødekommende kundeservice står klar til at svare på alle spørgsmål til dit køb.
Ved at blive medlem accepterer du Hjemfint.dk Integritetspolicy.












