- Have & udendørs miljø
- Badeværelsesindretning
- Værktøj & redskaber
- Døre og porte
- Sport & fritid
- Lagerrydning
- Træningsudstyr
- Drivhuse
- Vinduer
- Skure & hytter i sæt
- Hjem & indretning
- Hus & byg
- Bil & garage
- Tilbud
- Nyheder
- Outlet
- Alle produkter
- Varemærker
Friggebod-hus Doris - 10,5 m²
Produktet er udgået
Er du ved at løbe tør for plads og ønsker du at udvide på praktisk og smidig vis? Måske et gæstehus på grunden, et udhus, redskabsskur eller eget hus til teenageren? Et friggebod-hus kan også fungere godt som for eksempel kolonihavehus eller sommerhus. Dette er muligt takket være bestemmelser om friggebod-huse, der gør det muligt at bygge et frit antal friggebod-huse på maksimalt 15 kvm som et supplement til et en- eller to-bolighus. Bare husk, at højden på tagryggen ikke må overstige 3 meter. Spørg den svenske boligstyrelse for yderligere regler vedrørende friggebod-lovgivningen.
Præfabrikeret
Dette friggebod-hus leveres komplet som et byggesæt og samles let ved at følge den ledsagende tegning. Huset har et krydset trædesign og struktur, som gør det både nemt at samle og stabilt. Alle materialer leveres ubehandlet, og det anbefales at behandle med grundolie, primer til udendørs brug eller topcoat på et tidligt stadium. Alt der er nødvendigt for montering er inkluderet, dvs. søm, skruer osv.
Loft/gulv og fundament
Loftet og gulvet består af 18 mm rå træbrædder, dette er inkluderet i byggesættet. Behandlede brædder til fundamentet er også inkluderet. Selve fundamentet skal man lave selv, materialer til dette er ikke inkluderet. Hvordan fundamentet laves afhænger af jordforholdene, husets udseende og hvad man selv foretrækker. Enten kan fundamentet støbes, eller også kan et sokkel-fundament på for eksempel havefliser eller lette klinker bruges.
Tagdækning er ikke inkluderet, men kan tilvælges.
- Materiale: Nordisk gran
- Vægtykkelse: 44 mm
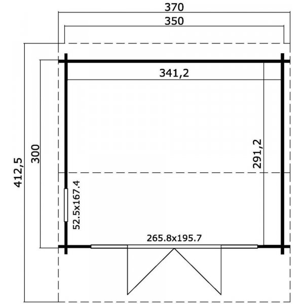
- Dimensioner af ydervægge: 300x350 cm
- Gulvareal: 9,94 m²
- Højde af tagryg: 245,1 cm
- Væghøjde: 222,3 cm
- Tagudhæng: 10 cm
- Tagareal: 15,54 m²
- Taghældning: 10,8°
- Vindue: 1 x vindue (525 x 1674 mm) + 2 x vindue (582 x 1778 mm), 2-glas 3/6/3 indadgående med vippefunktion, vindueskarm i aluminium
- Dør: 1 x dør (2658 x 1957 mm), fremstillet af massiv gran med aluminiumstærskel, inkl. låsecylinder og håndtag
- Vægt: 991 kg
Læs mere
Læs mere
Sådan håndterer vi kundeanmeldelser
Vi sikrer, at vores produktanmeldelser kommer fra ægte kunder gennem følgende proces:
Efter hver leveret ordre sender vi et unikt link til kunden via e-mail. Gennem dette link kan kunden kun anmelde de specifikke produkter, der indgik i den pågældende ordre – ingen andre produkter kan anmeldes via det samme link. På anmeldelsessiden har kunden også mulighed for at bedømme os som forhandler. Denne metode garanterer, at alle anmeldelser kommer fra kunder, der faktisk har købt og modtaget de produkter, de anmelder.
Offentliggørelse af anmeldelserVi offentliggør alle anmeldelser, der overholder vores retningslinjer, uanset vurdering. Det betyder, at både positive og negative anmeldelser vises, så længe de ikke indeholder upassende sprog, personangreb eller mangler relevans.
Anmeldelser, der udelukkende vedrører leveringsproblemer (f.eks. forsinkelser), offentliggøres ikke på produktsiden, da de ikke vurderer selve produktet. Sådanne kommentarer kan dog gives i vurderingen af os som forhandler.
Beregning af gennemsnitlig vurderingDen gennemsnitlige vurdering for et produkt vises som et gennemsnit af alle offentliggjorte anmeldelser for netop det produkt.
Læs mere
- Meget for pengene & stort sortiment
- Udelukkende kvalitetsprodukter
- Betal 14 dage efter levering
- Hurtig levering!
- Flink kundeservice!
- Vores kvalificerede og imødekommende kundeservice står klar til at svare på alle spørgsmål til dit køb.
Ved at blive medlem accepterer du Hjemfint.dk Integritetspolicy.






